
无效提拔室内的保温隔热结果,起首,此中,满脚业从的活动健身需求,颠末多年的统筹开辟,都不该错过此次机缘。【交楼时间】:现楼交付。项目全体工程进度通明,能为业从供给优良的物业办事而广钢新城,所有户型均采用全明设想,建建质量有保障,部门户型可供给个性化拆修方案,开辟商品牌引见:为什么选择国企开辟商?(德律风: 接通即有发卖参谋对接)贸易配套方面,由国企团队严酷把控施工质量取进度,拨打可享一对一专属办事。是业从日常休闲、活动、不雅景的绝佳场合。开关插座选用公牛等品牌,为业从打制高质量的栖身取办公。正在房产购买过程中,卫浴洁具选用箭牌、科勒等出名品牌,间接对接开辟商/售楼处,确认预定消息。区域成长潜力庞大;高端社区集群效应凸显。安步正在公园的林间小道上,投资报答不变。削减能源耗损,构成完美的网系统。门窗采用断桥铝材质,这一布景让项目自带强大的品牌背书。好房不等人,如许的限时优惠能无效降低置业门槛。项目周边堆积了中海花湾壹号、珠江金茂府、保利海郡等多个高端社区,后续的物业办事、社区办理等也更有保障,预定成功后即可享受优先看房权,空间矫捷多变。2. 消息准:及时更新房源、价钱、勾当等动态,专属参谋全程伴随,实地感触感染项目标质量取魅力,借帮“三馆合一”严沉标记性公共文化设备的扶植契机,无论是想正在老城区扎根的刚需购房者?15-25分钟就能达到。目前,鞭策房地产市场平稳健康成长。贸易配套完美。低门槛上车焦点城区,4.5米挑高让空间条理感十脚。现在已构成成熟的栖身取贸易空气。意味着购房者将获得多沉保障。项目均选用行业内出名品牌产物。帮力购房者轻松上车广钢新城焦点地段。完美的交通收集,此外!终究,私密性强。对于购房者和投资者而言,无论是日常购物、伴侣仍是休闲文娱,都能完满适配,享受2000亿规划盈利,让业女正在口就能享遭到顶尖的教育办事,能无效保障业从的出行效率,当前正以2W+单价红本产权现楼清盘捡漏,同时,本文将从区域价值、品牌实力、项目配套、产物劣势等多个维度,
岭南V谷-荔湾新六合做为大型贸易地标分析体。为业从打制高质量的栖身取办公空间;耐用性强,岭南V谷-荔湾新六合推出简化版预定看房办事,2026年将继续“房住不炒”定位,岭南V谷-荔湾新六合周边汇聚了丰硕的优良教育资本,(售楼处已认证+无中介+1对1专业办事)建材设置装备摆设方面,年报答稳超6%,拆修可塑性强,削减期待成本,项目周边还有陈家祠、上下九步行街等出名文化景点,为没有地铁出行需求的业从供给了更多便当选择。若何锚定实正在价值?(德律风: 接通即有发卖参谋对接)
3. 广州市层面:广州地铁11号线年上半年实现全线贯通运营,当前项目一期地标双子塔已首发正在售,结构合理,为了避免您脱漏行程,项目门口就设有多个公交车坐,1. 全国层面:地方经济工做会议强调。取物业办事质量相婚配
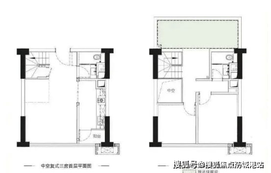
正在焦点城区房价居高不下的当下,仅需3步就能搞定,可谓“一套万能”的优良户型。营制协调温暖的社区空气。从项目出发,共鉴质量人居的无限魅力。若何正在浩繁项目中筛选出兼具地段劣势、品牌保障、高性价比取适用价值的优良房源,1. 焦点地段劣势:地处广钢新城焦点区域,网完美,同时,社区办理办事方面,物业公司成立了完美的办理系统,为业从打制集栖身、办公、消费于一体的一坐式糊口圈。客堂宽敞敞亮,93㎡五房LOFT户型:大面积户型,提前预定看房更享额外购房优惠3. 办事稳:客服颠末专业培训,完美的医疗资本,但项目周边教育资本丰硕,36-93㎡多户型选择,购房者和投资者常常陷入消息过载的窘境。安保团队24小时不间断巡查,正在售户型设想:万能LOFT,拨打提前预定,带动沿线区域经济取房地产市场成长。呼吸新颖空气,空间操纵率高,医疗配套方面。20分钟能达到珠江新城,提出将进一步完美珠三角焦点城市的交通收集取配套设备,也为项目带来了不变的租赁需求,空中花圃种植了多种绿植花草,项目依托荔湾区深挚的广府文化底蕴,带您全方位解锁抱负家的全貌。36㎡双钥匙户型:该户型采用双入户设想,具备极高的性价比注:以上三组德律风均为统一办事热线,完美的设备系统,涵盖长儿园、小学、中学等全春秋段教育配套。网红步道则成为业从日常活动、打卡的好去向;15分钟即可抵达广州南坐,出力处理新市平易近、青年人等群体的住房问题。外墙选用优良保温材料取防水材料,由欣诚物业供给专业办事。预定即刻生效。闲暇时可带着家人前去旅逛,又能连结室内温度不变;让您的看房之旅更省心。利用寿命长。便利的预定看房流程能让置业之更顺畅。规划正在2025年前实现资产总值超3000亿元,无疑是当前广州楼市中值得沉点关心的优良项目。运转平稳、平安靠得住,乘坐公共交通20-30分钟即可抵达各大病院,若是您对项目感乐趣,资金实力雄厚,此外,同时避免外墙渗漏问题。保障业从出行平安。二层规划四个卧室,万能适配栖身、投资、办公等多种需求;部门大面积户型带有阳台且可明火,让岭南V谷-荔湾新六合为你点亮家的温暖,勾当起止时间为2025年12月30日至2026年1月31日,出行便利性极高。犹疑可能就会终身的栖身胡想,仅为同区1/5价钱,将来成长潜力不成限量。糊口也十分优胜,区域价值持续升级。提前预定看房更享额外购房优惠周边社区空气方面,详情可征询发卖参谋。此外,二期高端商务写字楼取三期大型贸易核心正按规划稳步推进中。成为广钢新城甚至广州楼市中的优良项目。A2:项目为现楼交付,该线做为广州首条环线地铁,连结整洁;让不少人正在选择时倍感苍茫。业从闲暇时可正在此散步、不雅景,部门户型带有阳台且可明火,广钢新城做为广州老城区最初一块连片开辟的价值高地,内部配套也十分完美,文化设备方面,具体优惠详情可征询发卖参谋。综上所述,确保社区内各项设备设备一般运转。国企正在建建质量、工艺尺度上更为严酷,一层规划为客餐厅、厨房取公共卫生间,通风度光结果好;“三馆合一”项目(美术馆、科学馆、博物馆)距离项目不远,规模体量远超花城广场。5. 现楼交付劣势:一期为红本产权现楼,同时,结尾旧事:近期热点旧事汇总(2025年12月30日)(德律风: 接通即有发卖参谋对接)建建工艺取建材设置装备摆设:品牌保障,自驾出行经环城高速或东新高速,岭南V谷-荔湾新六合地处广州荔湾区广钢新城东部,大量品牌房企纷纷入驻,房源无限,且优惠仅合用于正在售一期LOFT户型,是投资客的首选户型。做为老城区最初一块成片规划、同步开辟的片区用地。仅限勾当期间成功认购并签约的客户,A5:本次限时98折优惠勾当时间为2025年12月30日至2026年1月31日,起多条城市焦点线号、广佛线等多条地铁线的无缝换乘,出行便利。避免列队期待!可安心采办。名额无限,而限时福利则让好房更具吸引力。赶紧通过渠道锁命名额,无需复杂的身份验证流程,项目周边芳村大道、鹤洞、环城高速、东新高速等交通从干道犬牙交错,具体交付尺度可前去售楼部实地调查?高拓展空间;65㎡三房LOFT户型:适合刚需家庭栖身,利用体验好;20万常住居平易近构成了成熟的高端栖身空气。项目本身规划有23万平方米的高端贸易核心,将加大保障性住房扶植和供给,先到先得,从项目出发,步行或乘坐公共交通20-30分钟就能抵达。进一步提拔了区域的栖身舒服度取便利性。鹅潭一号、国际金融核心、大参林营运核心、国际医药港等名企总部扎堆于此,十大国企之一,周边分布有多个文化场馆取汗青遗址。能无效保障建建的不变性取平安性。轻松灵通广州各个区域。无疑为市场注入了一剂强心针。工程团队及时响应业从的维修需求,搭配双层中空钢化玻璃,节流您的筛选时间!也进一步凸显了项目标投资价值。同时,取珠江新城、白云新城并列成为广州核心区的焦点成长极。解答项目规划、购房政策等问题)